Résidences de tourisme (chalets individuels)
Notre Dame BELLECOMBE
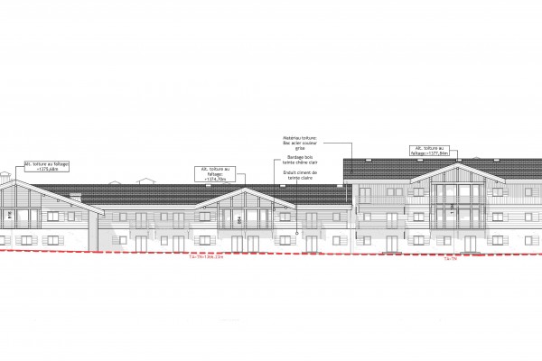
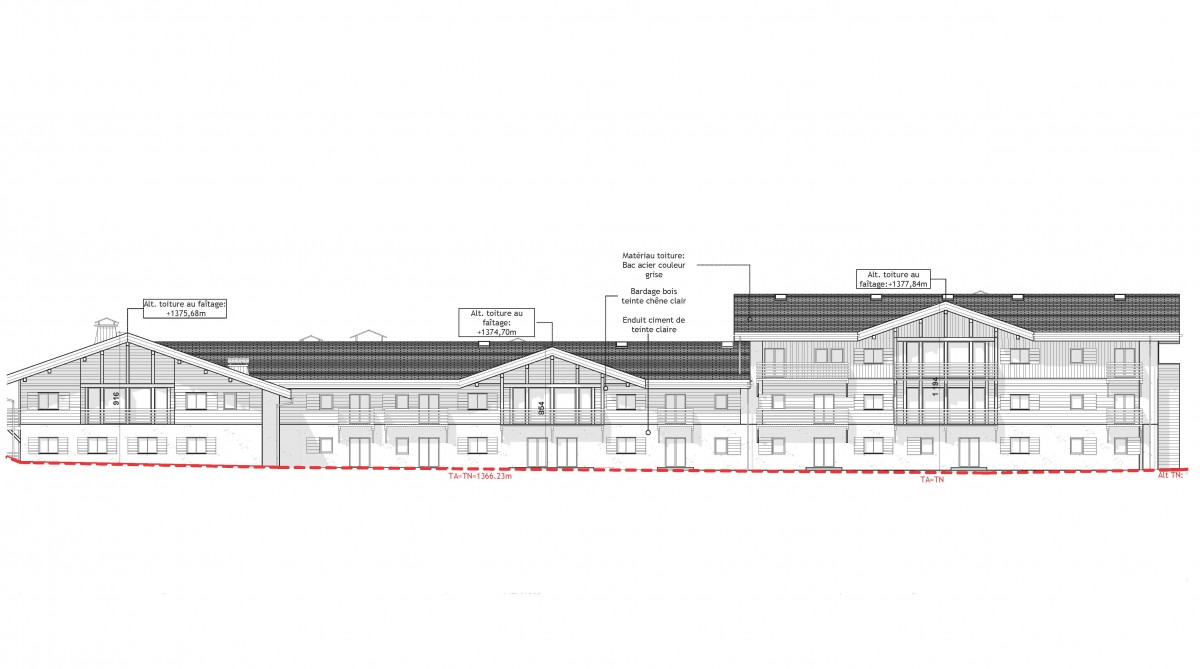
Rénovation d'un ancien complexe hôtelier en résidences hôtelières. Le projet consisite en la réhabilitation d'une ancienne maison familiale en 28 logements collectifs accesibles à la propriété et en un hôtel de 22 chambres, restaurant, spa. Le volume du batiment a été presque totalement conservé ; seules les toitures et les façades ont été repensées permettant ainsi de replacer le batiment dans une architecture plus actuelle et dans le style de la région.
<< Retour






